Save on Quick Possession homes or enjoy exclusive offers when you choose to Build Your Dream Home across our Alberta communities.

Metro Flex 18 - Rear-Lane Single Family

Spruce Grove – Greenbury
  • 1405 Sq. ft. 1405 Sq. ft. Rear-Lane Single Family
  • 3 beds 3 beds
  • 2.5 baths 2.5 baths

The Metro Flex 18 is about having flexibility in your living space. The main floor features an open-concept area with an interchangeable living room, flex space and dining so you can set up your home in a ways that best suits your lifestyle.

Elevate your lifestyle with the Metro Flex 18:

  • Spacious front entry with storage closet
  • Versatile living room and flex space
  • Oversized island for meal prep or hosting
  • Walk-in pantry to store all your cooking essentials
  • Mudroom with storage bench
  • Tucked away half bath for privacy
  • Open-to-below stairwell feature
  • Convenient double door laundry and linen
  • Oversized primary suite with large walk-in closet
  • Spacious ensuite for efficient mornings or relaxing after work
  • Large secondary bedrooms for your kids, guest room, home office, you name it!

Explore the Slate & Linen Interior Styles

*Subject to availability. Cantiro reserves the right to make changes in pricing, design, amenities and other content without notice or obligation. All artist renders and photos are for illustration purposes only.

Main Floor

Main Floor - 743 Sq Ft. The main floor features an open-concept area with interchangeable living room, flex space, and dining so you can set up your home in a way that best suits your lifestyle.

Upper Floor

Upper Floor - 662 Sq Ft. As you head upstairs the open-to-below feature allows your cozy living space to flow through to the upper floor. Here you'll find a large primary suite with convenient walk-in closet and spacious ensuite for getting ready or unwinding.

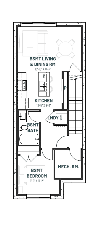
Basement

Basement - 613 Sq Ft. Basement Development Option

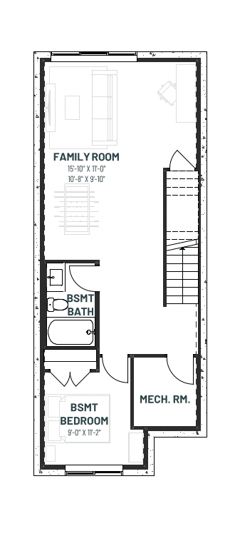
Basement

Basement - 602 Sq Ft. Secondary Suite Option

Available in these communities

Back to Results

Get in Touch

Contact us for further information