Save on Quick Possession homes or enjoy exclusive offers when you choose to Build Your Dream Home across our Alberta communities.

Family Spaces 24 - Front-Drive Single Family

  • 2489 Sq. ft. 2489 Sq. ft. Front-Drive Single Family
  • 3 beds 3 beds
  • 2.5 baths 2.5 baths

Family Spaces 24 is a versatile home designed for growing families who value flexibility and connection. The tandem garage provides room for two vehicles plus extra space for a third car, off-road toys, a workspace, or storage. Inside, the open concept main floor features a generous living, dining, and kitchen area, complemented by a dedicated home office or den. Upstairs, two bonus rooms offer private retreats for each the parents and kids, or for those seeking a little extra privacy.

The optional main floor plan transforms the tandem garage space into an oversized den and full bathroom, perfect for hosting overnight guests. The upper floor offers the ability to add a fourth bedroom for even more family flexibility. Family Spaces 24 delivers the perfect blend of adaptability, comfort, and room for every member of the family.

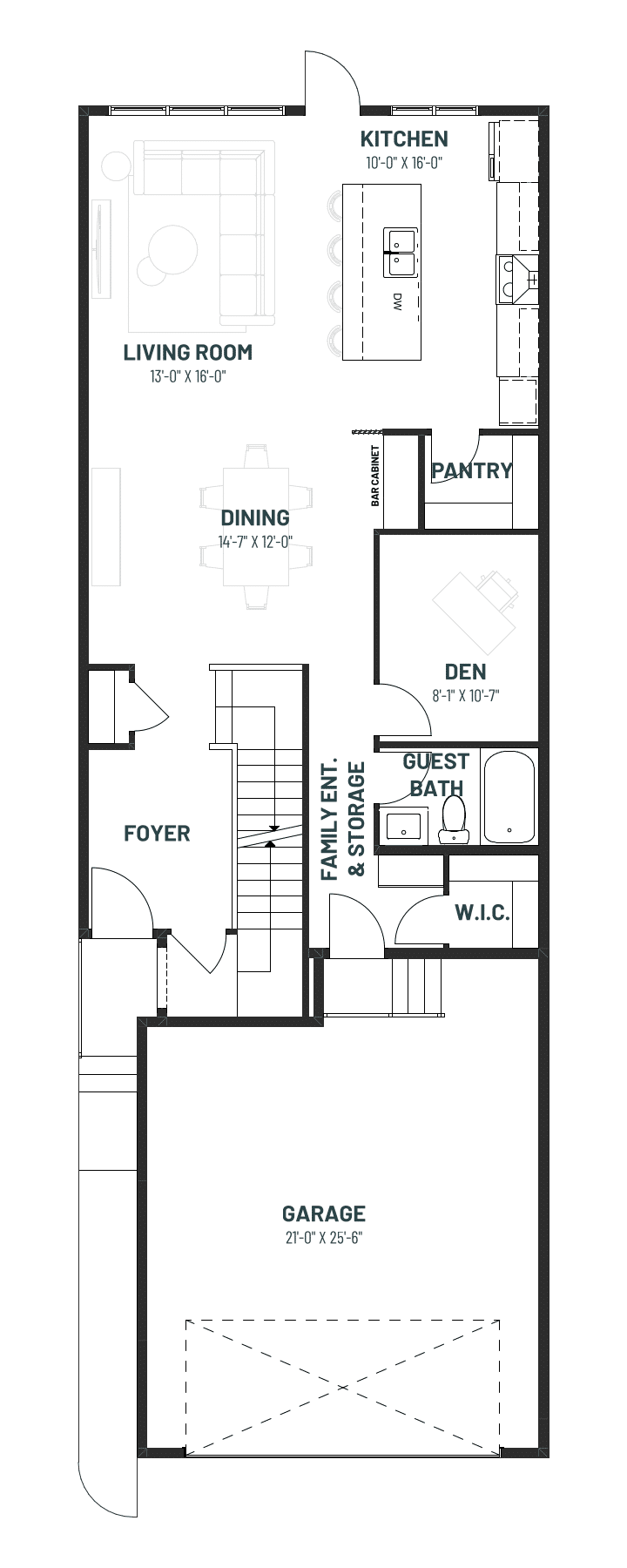
Main Floor

Main Floor - Tandem - 995 Sq Ft.

Main Floor

Main Floor - Double Car Suite Entry Option - 995 Sq Ft.

Main Floor

Main Floor - Double Car Option - 995 Sq Ft.

Main Floor

Main Floor- Tandem Suite Entry Option - 995 Sq Ft.

Second Floor

Second Floor - 1494 Sq Ft.

Second Floor

Second Floor - Upgrade Options - 1494 Sq Ft.

Second Floor

Second Floor - 4th Bed Upgrade Option - 1494 Sq Ft.

Second Floor

Second Floor - 4th Bed Option - 1494 Sq Ft.

Basement

Double Car Basement Development Option - 802 Sq Ft.

Basement

Double Car Basement - Secondary Suite - 855 Sq Ft.

Basement

Tandem Secondary Suite Development Option - 780 Sq Ft.

Basement

Tandem Basement Development Option - 727 Sq Ft.

Available in these communities

Back to Results

Get in Touch

Contact us for further information