Save on Quick Possession homes or enjoy exclusive offers when you choose to Build Your Dream Home across our Alberta communities.

Metro Achieve 22 DX - Duplex

  • 1703 Sq. ft. 1703 Sq. ft. Duplex
  • 3 beds 3 beds
  • 2.5 baths 2.5 baths

Metro Achieve 22 DX brings the popular Achieve layout from the Life Collection into a duplex home, offering a spacious and functional design to leverage a productive lifestyle for growing families and busy professionals.

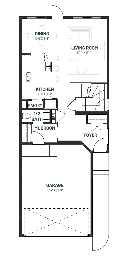
The main floor features a welcoming foyer, open concept kitchen with pantry, dining area, and living room-an amazing space for both for everyday living and entertaining.

Upstairs, the primary suite includes an ensuite and walk-in closet, along with two additional bedrooms, a full bathroom, convenient laundry room, and a bonus room ideal for family time or a quiet retreat.

The optional basement development adds a recreation room, fourth bedroom, and full bath, creating even more space for guests, hobbies, or multi-generational living. Metro Achieve 22 DX combines the versatility of a duplex with the proven comfort and flow of Cantiro’s most loved Achieve models

Main Floor

Main Floor - 714 Sq Ft.

Main Floor

Main Floor - Side Entry Option - 714 Sq Ft.

Second Floor

Second Floor - 989 Sq Ft.

Basement

Basement Development Option - 547 Sq Ft.

Available in these communities

Back to Results

Get in Touch

Contact us for further information