Save on Quick Possession homes or enjoy exclusive offers when you choose to Build Your Dream Home across our Alberta communities.
Anniversary Offer

Metro Elevate 18 – 8116 228 St NW

8116 228 St NW View on Map

West Edmonton – Rosenthal View on Map

Available: Feb 2026

  • 1391 Sq. ft. 1391 Sq. ft. Rear-Lane Single Family
  • 3 beds 3 beds
  • 2.5 baths 2.5 baths

As part of our Big 30th Event, this home features special anniversary pricing. Don’t miss out — tap “Request Information” below to connect with our Sales Team today!

The Metro Elevate 18 brings a uniquely designed layout to your main living space. From the spacious living room, the split-level design brings you up to the elevated kitchen and dining room. Upstairs the large primary suite has a relaxing ensuite with a wet room featuring a drop-in tub. Via the ensuite you have access to the walk-in closet with additional entry into a convenient laundry room. The basement boasts a finished recreation room for a home gym, games room or movie nights in.

Elevate your lifestyle with the Metro Elevate 18:

  • Mudroom with bench and hooks for added storage
  • Large wall pantry for all your cooking essentials
  • Unique open-concept, split level layout
  • Ensuite features a wet room with a drop-in tub
  • Kitchen Island for added seating and space to meal prep
  • Large linen closet with extra storage space
  • Spacious living room with high ceilings for elevated living
  • Convenient and connected ensuite, walk-in closet and laundry room

Interior Style: Linen

Not Shown On Floorplan:

  • Electric fireplace
  • Iron Spindle railing
  • Heritage Exterior

Looking for something else? 

*Subject to availability. Cantiro reserves the right to make changes in pricing, design, amenities and other content without notice or obligation. Note: Photos represent the model layout and finishes may differ. 

Floor Plans

Main Floor

Main Floor - 710 Sq Ft. From the spacious living room, the split-level design brings you up to the elevated kitchen and dining room.

Second Floor

Second Floor - 681 Sq Ft. Upstairs the large primary suite has a relaxing ensuite with a wet room featuring a tub with tile surround. Via the ensuite you have access to the walk-in closet with additional entry into a convenient laundry room.

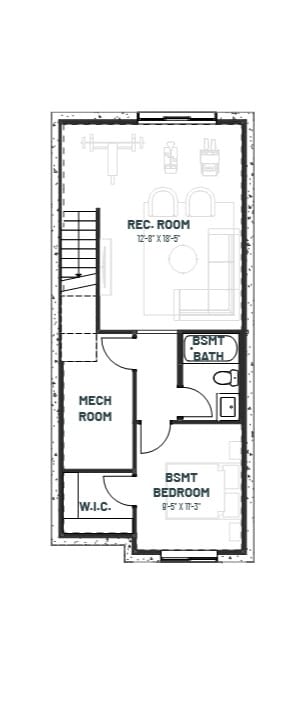
Basement

Basement - 318 Sq Ft. The basement boasts a finished recreation room for a home gym, games room or movie nights in.

Basement

Basement Basement Development Option

Download PDF

About The Community

Rosenthal

Rosenthal by Melcor is perfectly situated in West Edmonton, adjacent to the incredible lifestyle and sports amenities of River Cree Resort, Costco, The Grange Shopping Centre, and Lewis Estates Golf Course. Escape from the summer heat in the brand new spray park and enjoy beautiful community walking paths. Visit our show home today to learn how you can save with unique lot layouts.

Explore Community
Back to Results

Get in Touch

Contact us for further information