Metro Shift 18 – 8108 228 St NW

8108 228 St NW View on Map

West Edmonton – Rosenthal View on Map

$489,800 – On Hold

  • 1353 Sq. ft. 1353 Sq. ft. Rear-Lane Single Family
  • 3 beds 3 beds
  • 2.5 baths 2.5 baths

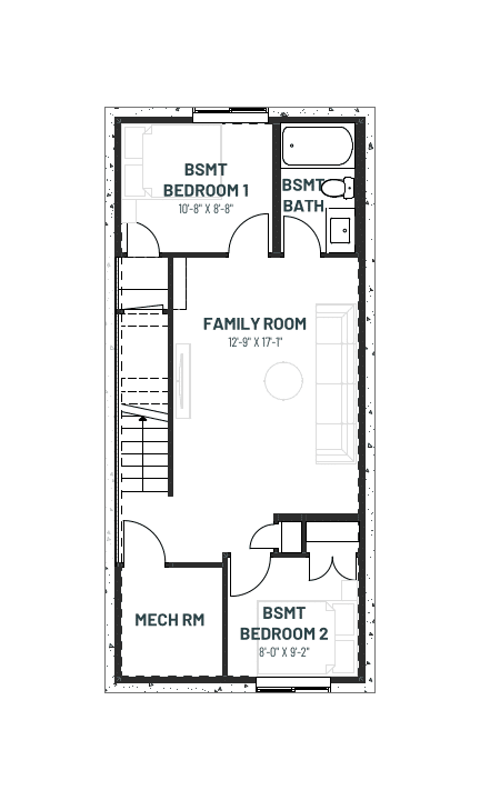
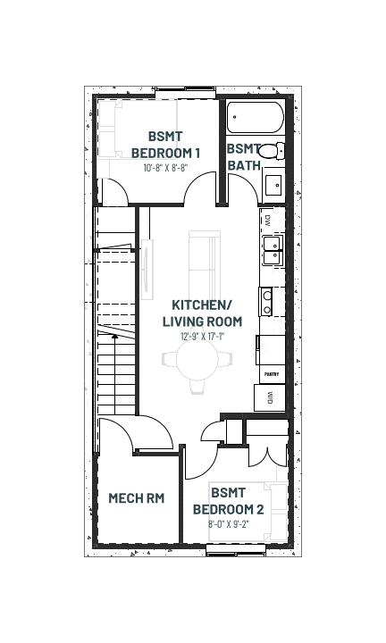
The Metro Shift 18, a rear-laned single family offering even more space and versatility, designed to fit on a broad range of lots and easily incorporate a side entrance for a future basement income suite. The expansive open-concept main floor includes a spacious kitchen, dining, and living area — perfect for family living and entertaining. With the Equity Personalization Package, you can add a two-bedroom basement suite, ideal for rental income or extended family, or opt to add the suite yourself at a later date. The Metro Shift 18 provides the perfect balance of space, convenience, and adaptability.

Not Shown On Floorplan:

  • Side entry
  • 9ft basement
  • Rough in – Future secondary basement suite (No furnace) drains only for future sink and laundry (no water lines)

Looking for something else? 

* Subject to availability. Cantiro reserves the right to make changes in pricing, design, amenities and other content without notice or obligation. 

Floor Plans

Main Floor

Main Floor - 702 Sq Ft.

Second Floor

Second Floor - 651 Sq Ft.

Basement

Optional Equity Personalization - 570 Sq Ft.

Download PDF

About The Community

Rosenthal

Rosenthal by Melcor is perfectly situated in West Edmonton, adjacent to the incredible lifestyle and sports amenities of River Cree Resort, Costco, The Grange Shopping Centre, and Lewis Estates Golf Course. Escape from the summer heat in the brand new spray park and enjoy beautiful community walking paths. Visit our show home today to learn how you can save with unique lot layouts.

Explore Community
Back to Results

Get in Touch

Contact us for further information